Raluca MacKenzie Real Estate - RE/MAX Hallmark Chay

38
$999,900 Sale
Listed 7 hours ago
190 Centre Street
· 4+1
· 4
· 2
· 2000-2500
Listing History
Buy/Sell/Terminated/Expired listing history for 190 Centre Street
Key Facts
Key facts for 190 Centre Street
Property Type
House, 2-Storey
Parking
Attached 2 garage, 8 parking
MLS #
N12476737
Size
2000-2500 sqft
Basement
Finished,Full
Listed on
2025-10-22
Lot size
192 x 123.6
Tax
$3,217.82 /yr
Days on Market
1
Approximate Age
31-50
Maintenance Fee
-
Description
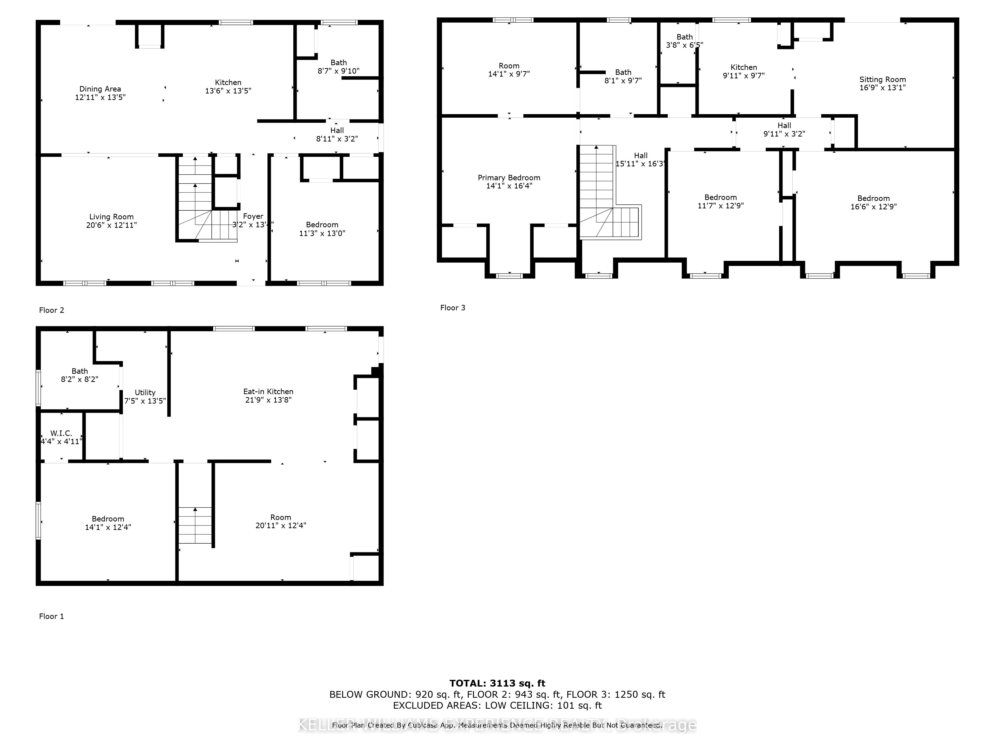
This unique family home is set on a rare, expansive in-town property beside the picturesque Nottawasaga River, offering the perfect blend of space, comfort, and natural beauty. With over 3,000 square feet of finished living space, this two-storey residence is ideal for multigenerational living, prov...iding a flexible layout across three fully equipped levels. The main floor welcomes you with a bright and airy living room that flows seamlessly into an open-concept space, featuring a large dining area and a spacious kitchen with a walkout to the patio and generous backyard. A good-sized bedroom and full bathroom complete this level, making it ideal for guests or family members seeking single-level convenience. Upper level includes primary bedroom with his and hers closets, a walk-through leads to a cozy den, perfect for a home office or private retreat and a full bathroom. 2 additional spacious bedrooms are found on this level, along with a second kitchen and living room with a walkout to an upper deck that overlooks the yard and provides access down to the outdoor space. The finished basement adds even more value, featuring a third eat-in kitchen, a full bathroom, a large bedroom with a walk-in closet, and a massive living room - ideal for an in-law suite or independent living space. Direct inside entry from the double car garage enhances everyday convenience. Recent updates include: Shingles (2015), Windows with transferable lifetime warranty (2019-2020), Patio doors (2020-2021). Step outside and enjoy the peace and beauty of your private backyard oasis, with the river right at your doorstep - perfect for nature lovers and fishing enthusiasts. Located just minutes from schools, parks, and shopping, and a quick drive to Base Borden, Alliston, and Barrie, this home truly offers the best of both worlds: serene living with urban amenities close by.
Similar Properties (No results)
Courtesy of: KELLER WILLIAMS EXPERIENCE REALTY